开关设备温升是检验设备性能的重要指标,控制温升是确保设备安全运行的可靠保障,所以合理安装、控制利用风机对开关设备降温是直接有效的重要措施。西电宝鸡电气有限公司的研究人员党丽敏、董立锋、张文忠,在2020年第4期《电气技术》杂志上撰文,在全面分析了设备温升产生原因及部位基础上,合理安装风机,并针对温升产生的每种原因设计控制风机方案,使开关设备风机控制水平合理完善,有效解决了设备温升问题,防止了安全事故的发生,确保了电力设备运行时的可靠性和安全性。
目前电力设备运行容量不断增大,开关设备运行电流也随之升高,导致开关设备运行可靠性降低,因此如何有效控制开关设备温升,以提高开关设备安全运行至关重要。目前,行业上现有的设备降温措施繁多,各种方案都不尽完善,大多只考虑一种导致设备温升升高的原因,针对一种采取措施,不能完全合理有效解决设备温升问题。
1 设计内容
本文目的在于解决上述问题,根据分析所得开关设备温升产生原因及主要部位,提供合理的开关设备辅助风机配置和安装方式,形成通风道,并设计有效控制风机电路,使设备在运行电流大、设备内环境温度高、设备采样部位(抽头、电缆头)温度高和需要及时开起风机预先降温的情况下,都可以实现自动或手动开起风机给设备有效降温。
2 设计原理
2.1 开关设备温升产生原因及主要部位分析
由于开关设备运行时会通过较大电流,电流通过导体产生的电阻损耗,从而使导体发热,特别是导体连接部位,由于接触电阻增大,更易发热;交流电器绝缘件内产生的介质损耗常常会引起开关设备内部绝缘件发热;开关设备要求防护等级为IP4X,导致整台开关设备封闭较严,通风性能较差。
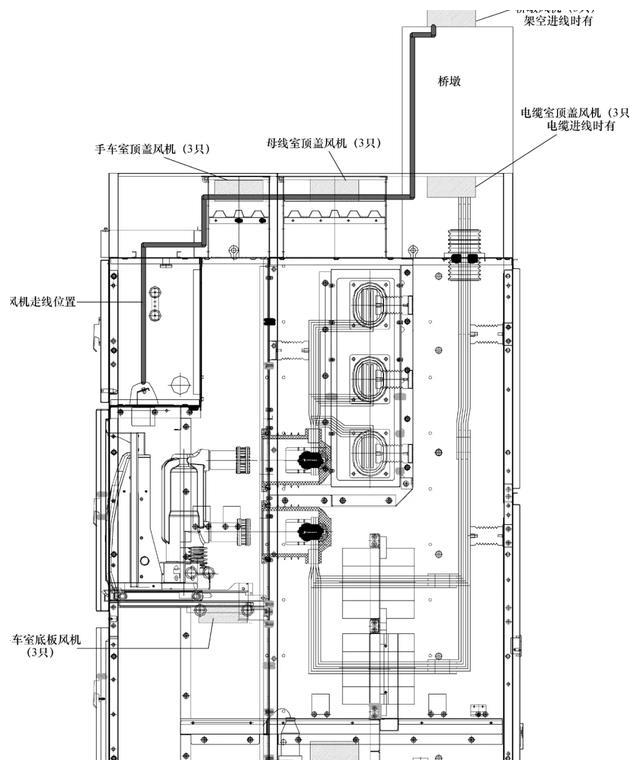
2.2 风机配置选型和安装方式
根据开关设备结构,在前柜一次手车室设置两组(3只/组)风机,上下各一组实现上下通风,在手车室内上下形成通风道,有效控制降低前柜温度;
在后柜一次电缆室(架空母线室)设置两组(3只/组)风机,并在桥墩顶部设置一组风机,上下各一组实现上下通风,在一次电缆室(架空母线室)内上下形成通风道,有效降低后柜温度;
由于主母线载流大发热几率高,故在母线室顶盖设置一组(3只/组)风机对主母线进行加强降温,有效控制降低主母线温度。
以上风机配置安装方式在开关设备所有一次室内及主要发热部位安装风机,并形成合理通风道,以实现控制降低整个开关设备温升的目的,如图1所示。
分析开关设备内部主要发热部件——母排,及母排发热量公式测算开关设备内部发热量,合理选择风机材料和功率。见表1。
图1 风机配置安装图
表1 开关柜风机参数选配表
按照公式及母站母线参数(见表2)计算,主母线单相的散热量约为550W/m,和母线制造商提供的母线散热损耗600W/m基本相近,再按照高压开关柜结构及母线使用量来估算,每面开关柜母线发热量大约为2kW。
表2 母线参数
2.3 风机控制电路
1)风机起动原理
风机控制电路如图3所示。
开关设备在运行电流升高时起动风机,具体以电流继电器(LJ)通过电流互感器采设备运行电流(见图2)。
当电流大于最大整定电流时电流继电器起动,接点起动大容量中间继电器(KA),中间继电器接点起动风机(FJ),此时完成风机起动以达到设备通风降温效果;中间继电器常开点与时间继电器(SS)延时打开点串联形成中间继电器自保持回路,当电流降到最低整定值时,电流继电器接点返回断开中间继电器起动回路,并起动时间继电器延时,时间继电器在被起动30min后,延时闭点打开断开中间继电器自保持回路,中间继电器失电,接点断开风机回路,实现风机延时停止。
图2 电流采样回路
开关设备内温度升高时起动风机,具体通过温度传感器(WCG)测量设备内环境温度,当被测设备内温度大于设定值时,温度控制器(WSK)输出接点起动大容量中间继电器(KA),之后中间继电器(KA)、时间继电器(SS)和风机(FJ)起动和停止方式同上。
开关设备采样部位温度升高时起动风机,具体通过温度传感器(WCG)测量设备内环境温度,开关设备在需要及时手动开起风机预先降温的情况下起动风机,具体通过控制开关(1SA)手动档来直接起动风机,通过控制开关停止档来直接停止风机。
2)风机回路故障报警电路
开关设备风机运行时,当风机、测温装置出现故障时,风机自带故障输出接点起动风机故障蜂鸣器报警;测温装置故障输出接点起动装置故障蜂鸣器报警,并可通过装置查看故障事件,可通过通信口上传测温及故障信息,风机故障输出点,也可送后台实时监控风机状态,及时处理风机故障,保证风机可靠运行,确保设备安全运行,避免因风机及控制回路故障引发的安全事故。
图3 风机控制电路
3)风机控制电路元件选型参数
风机控制电路元件选型参数见表3。
此设计电路对现有风机控制方案进行了创新完善,增加了电流起动、温度起动、延时停止、手动起停,将引起设备温升增大的各方面因素都考虑进去,实现了无死角控制;增加了延时停止功能,更加确保了设备温升的控制;还增加了风机故障接点,加强风机自身问题的排查力度,避免由于风机故障影响设备温升,进一步确保了设备温升的控制。防止了安全事故的发生,确保了电力系统的安全运行。
表3 风机控制电路元件选型参数
表4 1SA转换开关接点位置表(定位型)
3 结论
本文通过合理设置风机安装位置、形成上下通风道,确保风机开起能有效降低开关设备温升;通过分析可能引起开关设备温度升高的各种原因,针对每种原因设计全面合理控制风机原理,确保风机及时起动,避免开关设备温度过高,引起安全事故;当引起温升升高原因解除时,为了加速设备降温,增加延时停止风机功能,保证开关设备温升能迅速降到正常范围,更加可靠地确保设备安全运行。



